Docklands Vets

Royal Wharf, London

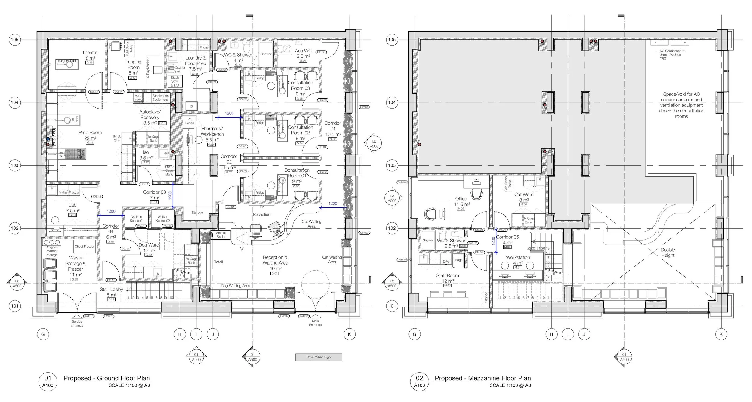
This is a new startup veterinary clinic in London. The fit-out space is a vacant new-build double height commercial unit with a number of structural columns that we needed navigate through in order to provide the optimum layout. The double height space enables a mezzanine to be incorporated for staff areas and the lab. Three consult rooms are located off the reception area with rear access into the clinical areas.

Previous
Previous

Ollie & Florrie Vets - Orpington, Kent

Next
Next

The Urban Vet - Earlsfield, London SW17